Skip to main content

NEUBAU Bungalow für TOP Preis mit allem Drum und Dran

 214,900

Überblick

Größe : 124 m2
Grundstück : 640 m2
Räume : 4
Garage : 1
Immobilien ID : 25221
Typ : Familienhaus, Ferienhaus

Beschreibung

EINSTÖCKIGES 124 m2 große NEUBAU Familienhaus mit Geschenk Smart-Home-Steuerung, sowie Lüftungs- und Alarmanlage!

Ihr NEUES ZUHAUSE, mit hohem technischem und qualitativem Inhalt, zu einem sehr günstigen Preis-Leistungsverhältnis! Das Neubau Bungalow mit hervorragenden Energiewerten bietet Ihnen jeglichen Komfort.

Die Bezahlungsterminierung kann nach individuellen Bedürfnissen gestaltet werden. Innerhalb von 3 bis 5 Monaten nach Vertragsabschluss können Sie Ihre Neubauimmobilie schlüsselfertig in Besitz nehmen!

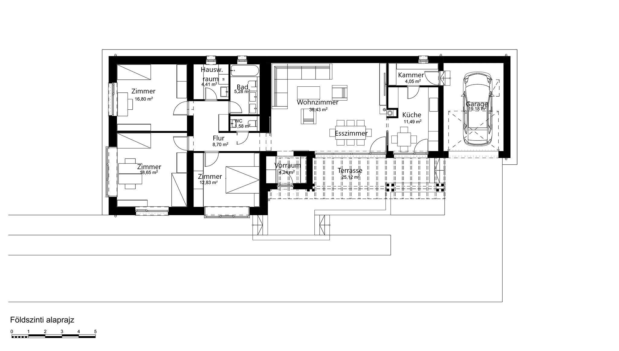
Das Anwesen mit einer Wohnfläche von 124 m2 umfasst einen größeren Gemeinschaftsraum mit Wohnzimmer, Esszimmer und Küche, 3 Zimmer, Speisekammer, Badezimmer, Gäste Toilette, Hauswirtschaftsraum, Vorraum und eine 20 m2 große Garage. Das Anwesen verfügt außerdem über eine 30 m2 große Terrasse.

Dank der intelligenten Steuerung und der Wärmepumpe sind die monatlichen Nebenkosten der Liegenschaft SEHR NIEDRIG!

Technischer Inhalt:

– Fußbodenheizung durch Wärmepumpe

– In allen Zimmern und Wohnzimmer Laminatparkett

– Küche und Badezimmer Fliesenboden, die Seitenwände sind bis zur Decke gefliest (!)

– Die Wände sind mit einem Heiz-Kühlsystem ausgestattet

– Photovoltaikanlage

– Belüftungssystem

– Alarmanlage

– 6 Stück MDF-Innentüren lackiert und eingebaut

–  Steuerung (mechanisch und elektrisch) installiert, betriebsbereit

– 2 Toiletten installiert, betriebsbereit

– 2 Waschbecken installiert, betriebsbereit

– 1 Dusche installiert, betriebsbereit

– 1 Warmwasserspeicher (100 l) installiert, betriebsbereit

– elektrische Installation mit Montage

– Sanitärinstallationen mit Armaturen

– Dach mit qualitativen Dachziegeln abgedeckt

*Hinweis: Bei individuellen Bedürfnissen können zusätzliche Kosten anfallen. Die Küchenmöbel sind nicht im Preis enthalten.

Optionale Ausgaben:

– Terrasse

– Extra Garage

– Zaun/Wand

– Pool

– Garten

– Nebengebäude

Architektonische Klassifizierung des Wohngebäudes: MASSIV HAUS. (nicht aus Leichtbauelementen gebaut!)

Wandstärke 34 cm

Wärmerückhaltevermögen→ U= 0,13 W/m2K!

(bei Passivhäuser ist dieser Wert U=0,12 W/m2K)

Bei der Wandkonstruktion handelt es sich um eine besondere Betonsorte, die dank verschiedener Legierungsmaterialien den strengsten Normen entspricht. Die Häuser aus Panelelementen können in etwa 3 bis 4 Tagen zusammengebaut werden, was die Bauzeit des gesamten Gebäudes erheblich verkürzt.

Im Massivhaus ist im Winter wie auch im Sommer eine angenehme Temperatur. Das Wärmerückhaltevermögen der 34 cm dicken Außenwand beträgt U=0,13 W/m2K, was eine hervorragende Isolierung bietet und als einer der besten auf dem heutigen Baumarkt gilt.

Die Qualität der Produktion (vorhandene Zertifikate – ÉMI), die Wärmedämmfähigkeit und die angewandten technischen Lösungen sind die Garantie dafür, dass die Elemente in der entsprechenden Qualität installiert werden. Darüber hinaus verfügen die Wände über hervorragende Schalldämm- und Feuerwiderstandseigenschaften.

Dank der mit spezieller Technologie hergestellten Bauelemente ist die Lebensdauer der Häuser praktisch unbegrenzt. Wenn das Haus unter einem hochwertigen Dach steht und nicht von einer außergewöhnlichen Naturkatastrophe betroffen ist, kann die Lebensdauer auf Hunderte von Jahren geschätzt werden!

Das Angebot gilt nur für das Gebäude und Grundstück! Während des Baus fallen auch andere Kosten, wie z.B.: (Administrationskosten gegenüber den Behörden, Betonfundament, Kosten für die Anschlüsse, usw…) an.

Die Größe der Wohnfläche kann natürlich je nach Bedarf kleiner oder eben größer sein.

KEINE PROVISION! Wir sprechen Deutsch und Englisch

Anmerkung:

Die von uns gemachten Informationen beruhen auf Angaben des Verkäufers bzw. der Verkäuferin. Für die Richtigkeit und Vollständigkeit der Angaben kann keine Gewähr bzw. Haftung übernommen werden. Ein Zwischenverkauf und Irrtümer sind vorbehalten.

Details

Kaufpreis :  214,900
Größe : 124 m2
Grundstück : 640 m2
Räume : 4
Garage : 1
Immobilien ID : 25221
Typ : Familienhaus, Ferienhaus

Adresse

Bereich : West Ungarn
Land : Ungarn
Postleitzahl : 9134
Adresse : Bodonhely

Merkmale

Ausstattung
Alarmanlage
Fußbodenheizung
Garage
Garten
Haustiere erlaubt
Neubau
Seniorengerecht
Solaranlage
Terrasse

Auf der Karte anzeigen

Get Directions

Gróz Csaba

Interesse